Een stap dichter bij jouw droomwoning

RENOVATIEPROJECT OP TOP LIGGING!
Binnenkort online
Deze woning is al verkocht
Beschrijving
Ligging
Marnixplaats, één van de top 3 hot-spots van Vlaanderen! say no more.
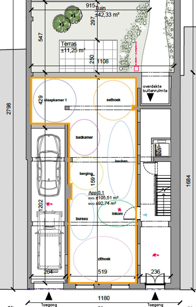
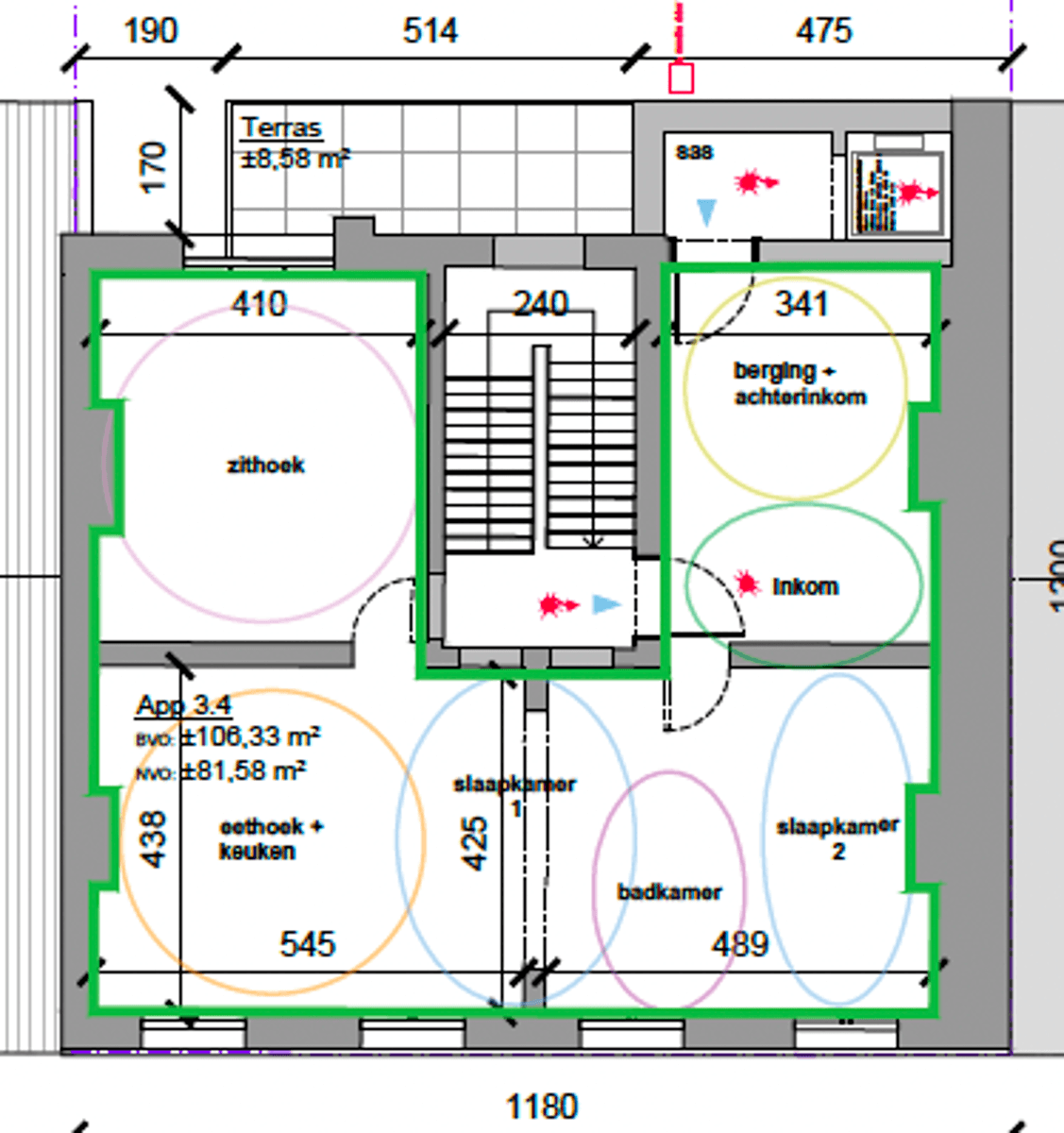
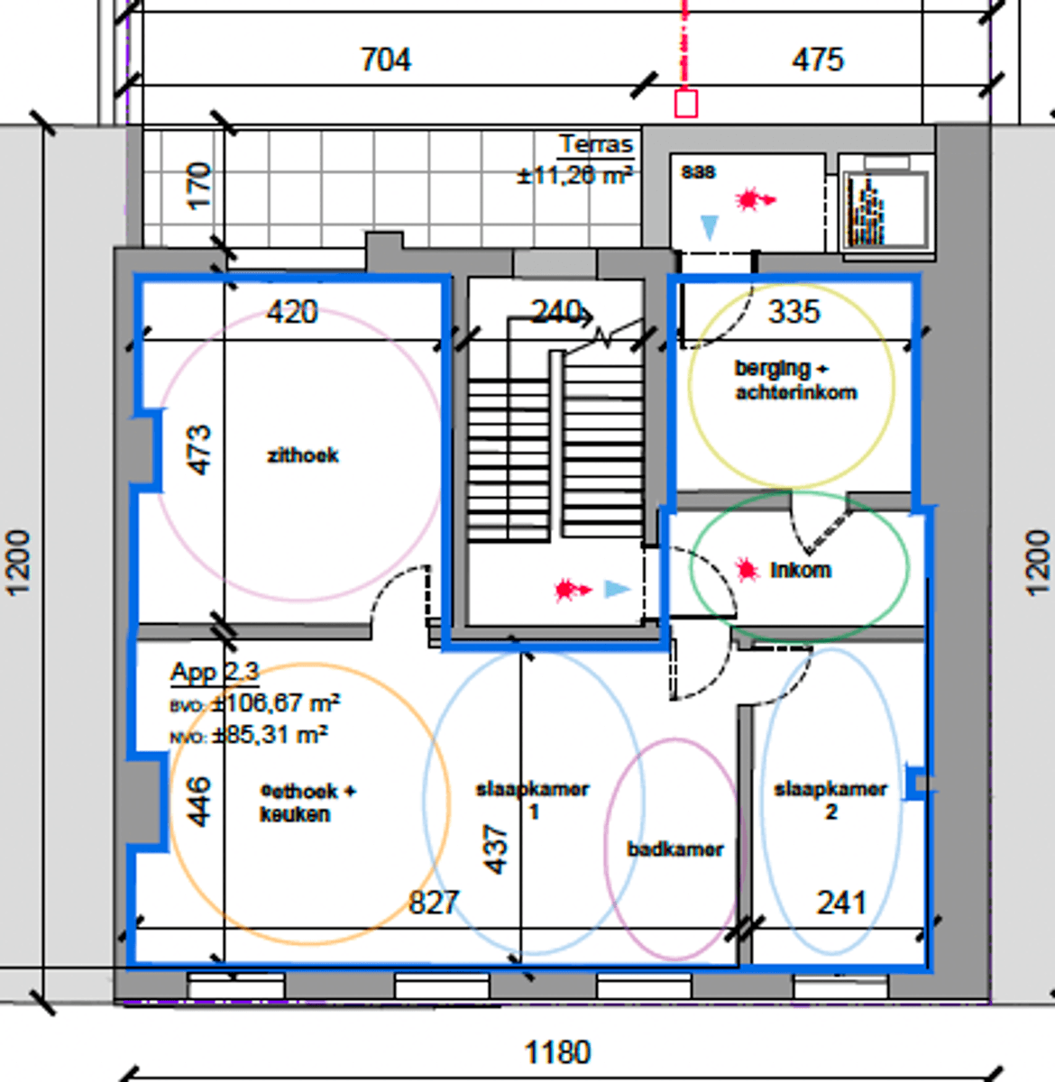
Indeling
Het gebouw in de Vrièrestraat biedt potentieel voor de realisatie van vier appartementen, telkens één appartement per verdieping, met een gemiddelde bruto-oppervlakte van ca. 100 m². Dankzij de brede voorgevel genieten de appartementen van een zeer mooie lichtinval, wat zorgt voor lichtrijke woonruimtes.
Het pand werd meer dan 20 jaar gebruikt als muziekschool, waarbij verschillende authentieke elementen bewaard zijn gebleven. Volgens het CHR-rapport zijn enkel de inkomhal en de moulures op het gelijkvloers beschermd, waardoor er verder nog veel flexibiliteit is in de ontwikkeling.
Het gebouw is volledig onderkelderd met een staankelder. Het gelijkvloers beschikt bovendien over een tuin. Achteraan bevindt zich een achterbouw die reeds verkocht is, waarbij het tussengebied zal worden ontpit en opgesplitst in een tuin voor de achterliggende woning en een tuin voor het gelijkvloerse appartement.
Daarnaast is er aan de linkerzijde van het gebouw een garagebox aanwezig.
In totaal heeft het gebouw een oppervlakte van 494 m2.Troeven
✔ Veel lichtinval
✔ Potentiëel 4 appartementen
✔ Droge, staankelder voor fietsenstalling
✔ Gunstige EPC-score (A) - Inclusief 8 zonnepanelen
Technisch
Stedenbouwkundige inlichtingen en bodemattest in aanvraag.
Koopt u als enige en eerste woning? Dan geniet u van het verlaagde tarief van 2% verkooprechten.
Bent u reeds eigenaar? Verkoop uw eerste eigendom binnen de 2 jaar en profiteer alsnog van deze gunstmaatregel.
Voor meer informatie of een gratis waardebepaling van uw vastgoed kan u een aanvraag invullen op onze website of even bellen op het nr. 03/345.88.99.
Woord van de eigenaar

Kenmerken
Inlichtingen





















