Een stap dichter bij jouw droomwoning

Nieuwbouwvilla in Residentiële Woonwijk van Brasschaat
Binnenkort online
Deze woning is al verkocht
Beschrijving
Uniek Perceel Bouwgrond met Voorontwerp Nieuwbouwvilla in Residentiële Woonwijk van Brasschaat
In het rustige, residentiële en groenrijke deel van de Guyotdreef in Brasschaat vindt u dit uitzonderlijk perceel bouwgrond van maar liefst 4.456 m². Een zeldzame kans voor wie op zoek is naar rust, ruimte én bouwmogelijkheden op een toplocatie.
Gelegen in één van de meest gegeerde lanen van Brasschaat, biedt dit perceel absolute rust, omringd door natuur en groen, terwijl winkels, scholen en openbaar vervoer toch vlot bereikbaar zijn. De achterzijde van het perceel grenst aan het bosrijke domein Eyckelenberg en biedt maximale privacy. Een ideale setting voor wie wil wonen in het groen, zonder in te boeten op bereikbaarheid.
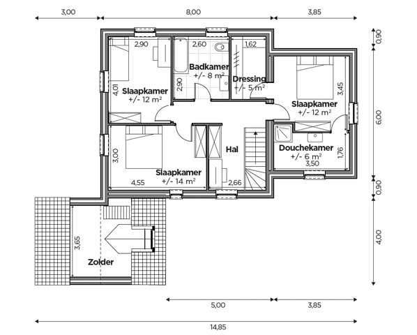
Er is reeds een voorontwerp voorzien van een moderne en energiezuinige villa, volledig aanpasbaar naar uw wensen. Deze woning is opgevat als een ruim en lichtrijk gezinshuis met alle hedendaagse comfort. Op het gelijkvloers is er ruimte voor een open leefruimte met grote raampartijen, een volledig uitgeruste leefkeuken, een bureau of extra kamer, een wasplaats en een inpandige garage. Boven voorzien de plannen 3 volwaardige slaapkamers, een ruime badkamer en extra bergruimte.
Deze villa wordt standaard uitgerust met een warmtepomp, vloerverwarming, ventilatiesysteem C+ EVO van Renson, zonnepanelen (4200 Wp), PVC-ramen met isolatieglas (Ug = 1,0 W/m²K), en een regenwaterput van 10.000 liter. Er is geen bouwverplichting, maar het huidige ontwerp werd opgesteld in samenwerking met een ervaren sleutel-op-de-deur partner met meer dan 6.000 gerealiseerde woningen.
TROEVEN
+ Groot perceel van 4.456 m² met zuidwestoriëntatie
+ Rustige ligging in een residentiële buurt
+ Geen bouwverplichting – wel reeds uitgewerkt voorbeeldproject beschikbaar
+ Volledig aanpasbare plannen en afwerking
+ Energiezuinig concept: warmtepomp, zonnepanelen, ventilatiesysteem
+ Optie tot snelle oplevering binnen 1 jaar na start werken
EXTRA
Voor meer informatie of een gratis waardebepaling van uw vastgoed kan u een aanvraag invullen op onze website of even bellen op het nr. 03/345.88.99.
Woord van de eigenaar

Kenmerken
Inlichtingen











