Een stap dichter bij jouw droomwoning

VERGUND PROJECT MET 7 APPARTEMENTEN + 5 STAANPLAATSEN
Binnenkort online
Deze woning is al verkocht
Beschrijving
Projectgrond met ruwbouw – Jan-Franse-Willemsstraat, Boechout
Vergunde ontwikkeling van 7 appartementen op uitstekende ligging
In de rustige Jan-Franse-Willemsstraat te Boechout wordt deze vergunde ontwikkeling voor 7 appartementen met bijhorende staanplaatsen aangeboden. Het project bevindt zich momenteel in ruwbouwfase, waardoor het uitermate geschikt is voor een ontwikkelaar of investeerder die de verdere afwerking en commercialisatie op zich wil nemen.
Ligging
De Jan-Franse-Willemsstraat is een rustige, enkelrichtingstraat met zicht op het groen. Deze straat combineert landelijke charme met een praktische ligging.
Boechout staat bekend om zijn aangename woonomgeving en goede ontsluiting naar de omliggende gemeenten en steden. Dankzij de nabijheid van belangrijke verbindingswegen vormt dit een sterke uitvalsbasis voor toekomstige bewoners, zowel voor pendelaars als voor gezinnen die rustig maar toch centraal willen wonen.
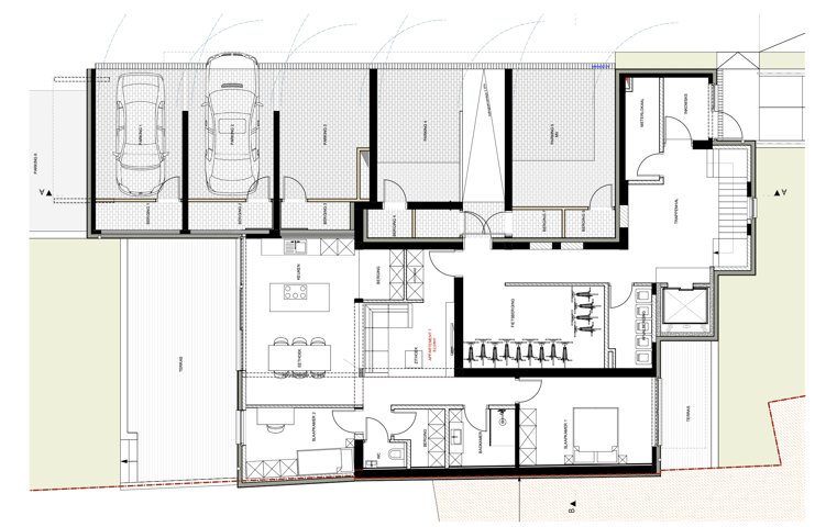
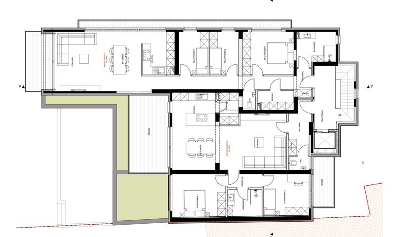
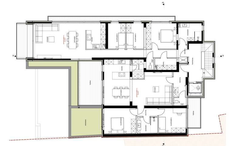
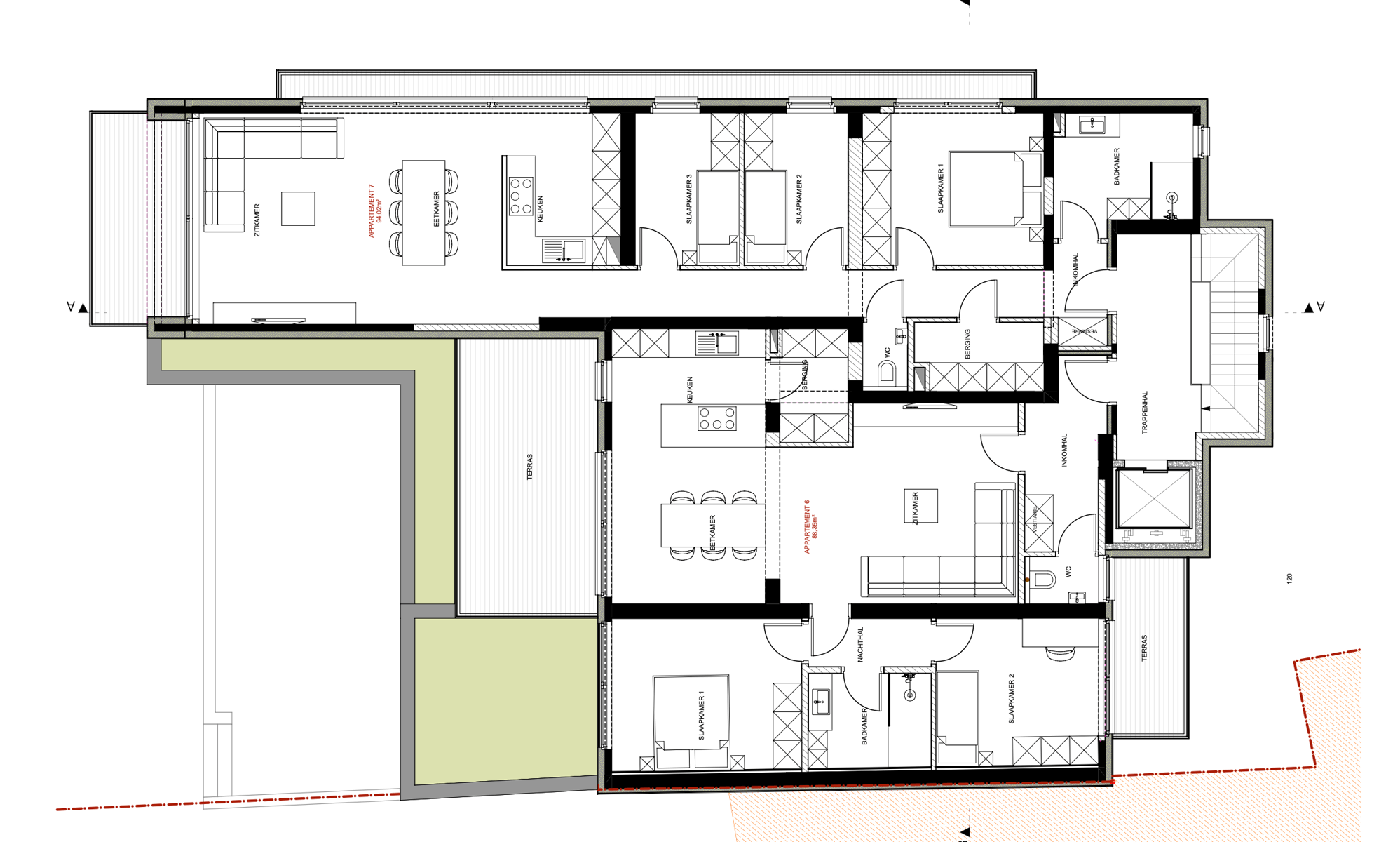
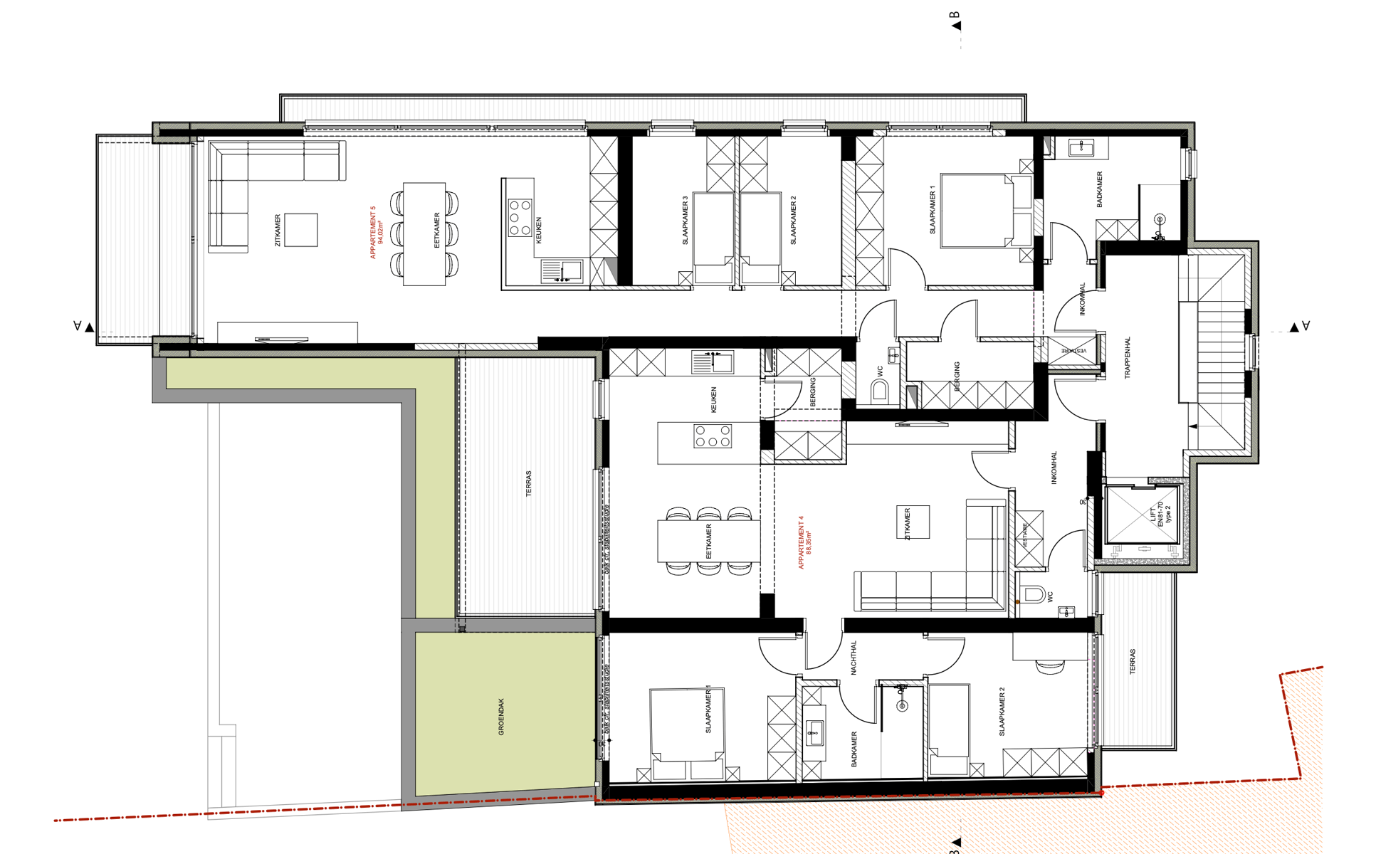
Project & Indeling
Het project bestaat uit in totaal zeven appartementen, verdeeld over verschillende bouwlagen. Op elke verdieping bevinden zich één à twee wooneenheden, wat zorgt voor een kleinschalige en overzichtelijke structuur. De appartementen zijn ruim opgevat, met grote raampartijen en een doordachte indeling die inspeelt op de huidige woonnoden.
De nodige parkeerplaatsen zijn integraal voorzien, wat de commerciële waarde van het project verhoogt.
De ruwbouw is reeds opgestart en uitgevoerd, waardoor een groot deel van de voorbereidende werkzaamheden reeds achter de rug is. Dit betekent dat de koper het project relatief snel verder kan ontwikkelen en afwerken, met een duidelijk vergund kader en sterke commerciële troeven in handen.
Vergunning:
Uitgedragen op 24 november 2020 voor 7 appartementen en 5 staanplaatsen.
Vergunning verkregen tijdens corona, dus 1 jaar extra voor wind en waterdicht
Werken zijn gestopt eind 2023
Was gekocht als beroepsaankoper onder 4%
Samengevat
- Vergund project voor 7 appartementen
- Inclusief bijhorende staanplaatsen
- Rustige, groene ligging met goede ontsluiting
- Reeds in ruwbouwfase: ideaal voor ontwikkelaar
- Kleinschalige structuur met interessante indelingsmogelijkheden
Woord van de eigenaar

Kenmerken
Inlichtingen





















