Een stap dichter bij jouw droomwoning

PROJECT (VERGUND) 4 UNITS
Binnenkort online
Deze woning is al verkocht
Beschrijving
<iframe frameborder="0" height="400" scrolling="no" src="https://drawbotics.floorplanner.com/projects/29802396-Schoolstraat-9-Ranst/spaceplanner" width="100%"></iframe>
Richt deze woning in op uw computer: KLIK HIER!
Op zoek naar een investering met potentieel én zekerheid? Deze ruime woning mét vergunde projectontwikkeling voor 4 aparte units in hartje Ranst biedt u een unieke kans!
Ligging:
Deze eigendom is gelegen in de bruisende dorpskern van Ranst, pal aan de kerk, met alle voorzieningen binnen handbereik: scholen, winkels, horeca, openbaar vervoer en belangrijke invalswegen. U bent in geen tijd in Deurne, Broechem, Lier of op de autosnelweg.
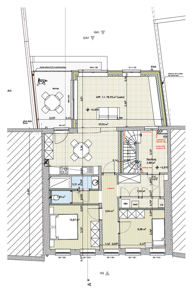
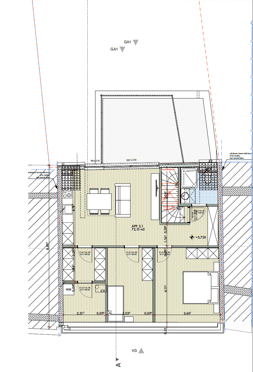
Projectinformatie:
Deze woning wordt verkocht met een reeds goedgekeurde vergunning voor de opdeling in vier afzonderlijke entiteiten, wat dit pand uitermate interessant maakt voor ontwikkelaars, investeerders of wie op zoek is naar een opbrengsteigendom.
De vergunde plannen voorzien in de volgende indeling:
+ 1 handelsruimte op het gelijkvloers
+ 1 gelijkvloerse studio
+ 2 ruime appartementen op de verdiepingen, elk met eigen buitenruimte
De vergunning is volledig in orde en uitvoerbaar bij akte, wat betekent dat u meteen aan de slag kan met de ontwikkeling.
Waarom dit project?
+ Reeds vergund – geen tijdverlies of onzekerheid
+ Combinatie van wonen en handel
+ Potentieel voor meer dan één verhuurinkomen
+ Grote bewoonbare oppervlakte (261 m²)
+ Centrale ligging met hoge huurvraag
+ Grote tuin en buitenruimtes inbegrepen in de plannen
Extra:
Of u nu wenst te ontwikkelen, te verhuren of door te verkopen: dit pand biedt verschillende rendabele pistes. Wenst u het pand liever als woning te gebruiken? Ook dat blijft mogelijk, want het is officieel erkend als eengezinswoning.
Woord van de eigenaar

Kenmerken
Inlichtingen































