Een stap dichter bij jouw droomwoning

Ruime gezinswoning met 3 slaapkamers en tuin in Kontich
Binnenkort online
Deze woning is al verkocht
Beschrijving
<iframe frameborder="0" height="400" scrolling="no" src="https://drawbotics.floorplanner.com/projects/27015204-Kontich-Konijnenveld-25/spaceplanner" width="100%"></iframe>
Richt dit pand in op uw computer: KLIK HIER.
Ruime gezinswoning met 3 slaapkamers + bureauruimte en zonnige tuin in Kontich
Welkom in deze charmante gezinswoning in het hart van Kontich. Met 3 slaapkamers, een zonnige tuin en een gunstig EPC-label C, biedt deze woning alles wat u zoekt voor comfortabel wonen.
Bij binnenkomst wordt u verwelkomd in een ruime inkomhal op tegelvloer, voorzien van een gastentoilet. De lichtrijke woonkamer strekt zich uit over de volledige diepte van de woning en biedt voldoende ruimte voor een gezellige zithoek en eetruimte. De open keuken is volledig uitgerust met modern kookcomfort en sluit naadloos aan op de eetruimte met een sfeervolle lichtkoepel die zorgt voor extra lichtinval. Vanuit hier heeft u zicht op de zonnige tuin.
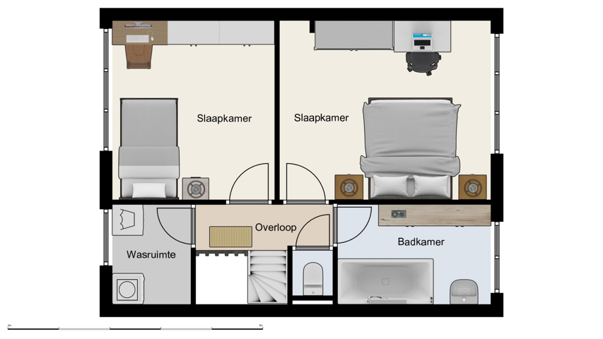
De eerste verdieping is bereikbaar via een elegante houten trap en biedt twee ruime slaapkamers, perfect voor het hele gezin. Daarnaast vindt u hier een badkamer met ligbad en lavabomeubel, een praktische wasruimte en een tweede toilet. De tweede houten trap leidt u naar de zolderverdieping, waar nog een derde slaapkamer is ondergebracht. Daarnaast is er momenteel een praktijkruimte, ideaal voor wie van thuis uit werkt of extra hobbyruimte zoekt en een extra opbergzolder.
De woning beschikt verder over een prachtige, onderhoudsvriendelijke tuin, waar u optimaal kunt genieten van zonnige dagen. Gelegen in een rustige buurt, maar toch dicht bij scholen, winkels en belangrijke uitvalswegen, biedt deze woning een uitstekende locatie voor gezinnen die op zoek zijn naar comfort en bereikbaarheid. Wacht niet langer en plan vandaag nog een bezichtiging! Uw nieuwe thuis in Kontich wacht op u.
TROEVEN
+ Lichtrijke gezinswoning.
+ 3 volwaardige slaapkamers.
+ Extra ruimte voor hobby of bureau.
+ Gunstige EPC-score C.
+ Zonnige tuin.
+ Toplocatie nabij winkels, scholen en belangrijke invalswegen.
EXTRA
Stedenbouwkundig uittreksel in aanvraag.
Is het uw eerste en enige aankoop? Dan dient u slechts 3% verkooprechten te betalen. Lees hier meer over.
Is het niet uw eerste aankoop? Verkoop uw eerste eigendom binnen de 2 jaar en geniet ook van deze gunstmaatregel. Lees hier meer over.
Voor meer informatie of een gratis waardebepaling van uw vastgoed kan u een aanvraag invullen op onze website of even bellen op het nr. 03/345.88.99.
Woord van de eigenaar

Kenmerken
Inlichtingen

























